
Yangın merdivenlerinin sağlamlığı ve güvenli oluşu
Yeni yapılan binalarda, merkezi uydu sistemleri, fiber internet kablo sistemleri ve hırsız alarm sistemleri gibi günümüzün modern inşaat anlayışına uygun sistemler kurulduğu gibi bunların paralelinde artık yangın alarm sistemleri ve bina içi yangın söndürme sistemleri gibi acil durum önlemleri de alınmaktadır. Yangın merdivenlerini saymıyoruz bile. Bu zaten olmazsa olmazlardan biri olarak kabul ediliyor. Büyük ve kompleks binalarda bu sayılanlar artık lüks olarak değil bina yapımının standartları olara
DEVAMI

Z şekilli Yangın Yerdivenleri
Yangın merdivenlerinin iki farklı şekilde yapıldığından, bunlardan birinin dairesel şekilli olduğundan, diğerinin ise Z şekilli yapıldığından bir önceki yazımızda bahsetmiştik. Şimdi Z şekilli yangın merdivenleri üzerinde duralım.
Z şekilli yangın merdivenleri düz bir modeldir. Bu yüzden de düz yangın merdivenleri olarak da isimlendirilir. Genelde binalarda daha sade bir görünüm elde etmek için tercih edilir. Yine de esas olan merdivenlerin bina ile uyumunun sağlanmış olmasıdır. Bu da mühendisin çalışmasına bağlıdır
DEVAMI

Dairesel şekilli yangın merdivenleri
Yapılış şekilleri esas alındığında iki tip yangın merdiveni olduğu görülür. Yangın merdivenleri ya dairesel şekilli yapılırlar ya da Z şekilli yapılırlar. Bu yazıda dairesel şekilli yangın merdivenleri üzerinde duracağız.
Bazı binaların mimarisi ve inşaat özellikleri, yangın merdiveni yapımı için kullanılacak alan konusunda sıkıntı yaratabilir. Bu nedenle dairesel şekilli yangın merdivenleri daha çok yer problemi olan bu binalarda tercih edilir. Çünkü daha az yer tutarlar. Bunun yanında binaya sırf estetik bir g
DEVAMI

Yangın merdivenleri üretiminde korsan firmalar var mı?
Olmaması gerekir elbette. Üstelik insan yaşamının konu olduğu bu alanda hiç olmaması gerekir. Ama korsan firma yoktur diyemiyoruz işte. Olması istenmediği halde, bazı yangın merdiveni üretici firmaları, yalan yanlış referanslarla, sanki kendileri yapmış gibi gösterdikleri örneklerle bu alanda at koşturabiliyorlar. Bu işi bileğinin hakkıyla ve sorumluluk duygusu ile yapmaya çalışan firmaların sayısı ne yazık ki bu korsan firmaların sayısından daha düşük denebilir.
Bir acil durum karşısında insan yaşamın
DEVAMI

Bir yangın merdiveni hikayesi
Bir bina düşünün. Altı katlı ve 12 daireli bu binanın içinde neresinden baksınız 40 kişi yaşıyordur. Bu binayı yapan müteahhit bir de yangın merdiveni yapmış binaya. Elbette yasal uygulamalar gereğince bunu yapmak zorunda. Ama yangın merdivenini gören herkes şaşkınlıktan ne diyeceğini bilemiyor.
Bu bina Anadolu’da bir şehrimizde yapılmış ve bu yangın merdiveni yüzünden geçtiğimiz aylarda gazetelere haber olmuş. Haydi hangi il olduğunu söylemeyelim ama müteahhitin akıllara durgunluk veren tasarımını burada paylaşal
DEVAMI

Yangın merdivenlerinin ucuzu olur mu?
Birşeyi ucuz mal etmenin bedeli kaliteden çalmaktır. Kalite düşürülürse ve ucuz malzeme kullanılırsa fiyat da düşer. Ya da ucuz iş gücü kullanılırsa uzmanlık gerektiren bir işte sonuç, işe yaramaz bir ürün elde etmektir. O nedenle bir mal veya hizmet alırken ucuzunu aramak akılcı bir yaklaşım olamaz. Hele konu bir yangın merdiveni ise işin sonunda yaşamsal tehlikelere maruz kalmak, istenmeyen durumlarla karşılaşmak mümkün.
Her ne kadar bir yangın merdiveninin nasıl yapılması gerektiği yasal mevzuat ile beli
DEVAMI

Yangın merdiveni ve bir tarihi bina
Kahramanmaraş, çok farklı uygarlıklar barındırmış, birçok kültürün yerleştiği ve yaşadığı, tarihten izler taşıyan bir Anadolu şehrimiz. Bu şehirde çok eski bir yetimhane binası var. Yaklaşık 125 yıl önce yapılmış olan bu bina, o zamanlar yetim Alman ve Ermeni çocuklarını eğitmek amacıyla yapılmış. Bu yüzden de adı Alman Yetimhanesi olarak kalmış. Şehirdeki en büyük konak olan bina, 4 katlı ve 27 odalı.
Cumhuriyetin ilk yıllarında bina bir Türk tarafından satın alınır. Bir süre konut olarak
DEVAMI

Yangın merdiveni öncesinde bina güvenliği
Günümüzde çok katlı, yüksek binalar yapılıyor. Bu binalarda, işyeri olsun ev olarak kullanılıyor olsun, çok kalabalık bir nüfus barınıyor. Bu yüzden de yangın olasılığı her yönüyle ciddiye alınması gereken önemli bir konu. Bu binaların yangın merdiveni gereksinimini konuşulurken aslında daha öncesinde binanın yangına karşı nasıl bir güvenliğe sahip olduğuna bakılmalıdır. Çünkü bir bina yapılırken, sıra yangın merdivenine gelmeden önce düşünülmesi ve
DEVAMI

Yangın merdivenleri nasıl üretilmeli?
Bir yangın merdiveni, hergün kullanılan sıradan bir merdiven değildir. Normal koşullarda elbete kullanım gereksinimi olmaz. Ancak bir yangın durumunda yaşam kurtarıcı özelliği vardır. Böyle olunca da yangın merdivenlerinin yapımı ciddiye alınması gereken bir iştir. Baştan savma bir tasarım, kaleme kitaba gelmeyen bir hesaplama tarzı, yani işi ciddiye almama durumu, kullanım ihtiyacı duyulduğunda istenmeyen sonuçlara yol açabilir.
O zaman yangın merdivenleri nasıl üretilmeli?
Üretim aşamasında iki temel unusurdan vazgeçilm
DEVAMI

Hayatın gerçekleri içerisinde yapılan birçok plan hep güzel günler için yapılmaktadır. Hayata dair beklentilerin dışında güvenli bir hayat için gereksinimler büyük önem taşımaktadır. Bu gereksinimlerden birisi olan yangın merdiveni hem kullanım alanının huzurlu hayatı sunmada hem de daha rahat bir yaşam oluşturmada etkisi büyüktür. Yapılan tespitlerde yangının gerçekleştiği yerde kullanılan yangın merdivenlerinin hayat kurtarmada ki payı oldukça fazladır. Can güvenliği için olmazsa olmaz gereksinim olması da &o
DEVAMI

Apartmanlarda yangın merpeni zorunlu mu?Yangın merpenleri çok katlı yapılarda yangın başta olmak üzere herhangi bir olumsuzlukta çıkış olarak tasarlanan yapılardır. Bu yapılar binanın dış kısmına monte edilip,özel olarak tasarlanıyorlar. Sadece yangın durumunda değil her türlü doğal afetlerde veya olumsuz insani durumlarda da hayati fayda sağlayabiliyorlar.
Yangından Korunma Yönetmeliği kapsamında bazı kriterlere göre ayrılan ve genel kullanım niteliği belli olan binalar için yangın merpeni inşa edilmesi zorunlu tutuluyor.Yangın merpeni yapılması zorunlu yer
DEVAMI

Yangın Merdiveni FiyatlarıYangın Merdiveni Fiyatları hizmetimiz binanızın çatı güvenliğini ve verimliliği arttırmaya yöneliktir. Firmamız çelik hammadde kullanarak Yangın Merdiveni Fiyatları hizmetini sağlamaktadır. Yüksek kaliteli çelik malzeme kullanılmasının kalite ve güvenini yaşamanız için uzun yıllardır geliştirdiğimiz tecrübelerimizle hizmetinizdeyiz.Çelik Çatı sektöründe firmamızın sürekli tercih edilmesini sağlayan sebeplerden biri de ücretsiz keşif ile projenizdeki her türlü ihtiyacınıza hızlı yanıt verm
DEVAMI

Yeni yapılan binalarda, merkezi uydu sistemleri, fiber internet kablo sistemleri ve hırsız alarm sistemleri gibi günümüzün modern inşaat anlayışına uygun sistemler kurulduğu gibi bunların paralelinde artık yangın alarm sistemleri ve bina içi yangın söndürme sistemleri gibi acil durum önlemleri de alınmaktadır. Yangın merdivenlerini saymıyoruz bile. Bu zaten olmazsa olmazlardan biri olarak kabul ediliyor. Büyük ve kompleks binalarda bu sayılanlar artık lüks olarak değil bina yapımının standartları olarak kabul görüyor.
Ancak diğer taraftan sıradan m&uu
DEVAMI

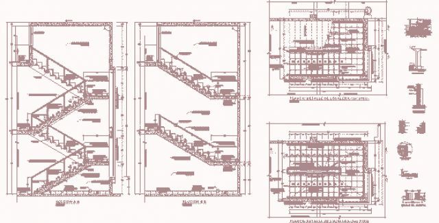
Yangın merdiveni, yangın esanasında insanların hızlı bir şekilde ve güvenle tahliye edilebilmesi için hayati öneme sahiptir.
Yangın merdivenin sağlamlığı olası bir yangın durumunda insanların can güvenliği için, sağ salim binadan tahliye edilmeleri için çok önemlidir.
Yangın merdiveni hakkında detaylı bilgi almak ve ürün resimlerini görmek için lütfen sitemizi ziyaret ediniz.
Yangın Merdiveni Satışı ve Yangın Merdiveni İmalatı Hakkında Türkiyenin En Kapsamlı Yangın Merdiveni Bilgi Platform
DEVAMI

Yangın merdiveni, yangın esanasında insanların hızlı bir şekilde ve güvenle tahliye edilebilmesi için hayati öneme sahiptir.
Yangın merdivenin sağlamlığı olası bir yangın durumunda insanların can güvenliği için, sağ salim binadan tahliye edilmeleri için çok önemlidir.
Yangın merdiveni hakkında detaylı bilgi almak ve ürün resimlerini görmek için lütfen sitemizi ziyaret ediniz.
Yangın Merdiveni Satışı ve Yangın Merdiveni İmalatı Hakkında Türkiyenin En Kapsamlı Yangın Merdiveni Bilgi Platform
DEVAMI

Yangın merdiveni, yangın esanasında insanların hızlı bir şekilde ve güvenle tahliye edilebilmesi için hayati öneme sahiptir.
Yangın merdivenin sağlamlığı olası bir yangın durumunda insanların can güvenliği için, sağ salim binadan tahliye edilmeleri için çok önemlidir.
Yangın merdiveni hakkında detaylı bilgi almak ve ürün resimlerini görmek için lütfen sitemizi ziyaret ediniz.
Yangın Merdiveni Satışı ve Yangın Merdiveni İmalatı Hakkında Türkiyenin En Kapsamlı Yangın Merdiveni Bilgi Platform
DEVAMI

Yangın merdiveni, yangın esanasında insanların hızlı bir şekilde ve güvenle tahliye edilebilmesi için hayati öneme sahiptir.
Yangın merdivenin sağlamlığı olası bir yangın durumunda insanların can güvenliği için, sağ salim binadan tahliye edilmeleri için çok önemlidir.
Yangın merdiveni hakkında detaylı bilgi almak ve ürün resimlerini görmek için lütfen sitemizi ziyaret ediniz.
Yangın Merdiveni Satışı ve Yangın Merdiveni İmalatı Hakkında Türkiyenin En Kapsamlı Yangın Merdiveni Bilgi Platform
DEVAMI

Yangın merdiveni, yangın esanasında insanların hızlı bir şekilde ve güvenle tahliye edilebilmesi için hayati öneme sahiptir.
Yangın merdivenin sağlamlığı olası bir yangın durumunda insanların can güvenliği için, sağ salim binadan tahliye edilmeleri için çok önemlidir.
Yangın merdiveni hakkında detaylı bilgi almak ve ürün resimlerini görmek için lütfen sitemizi ziyaret ediniz.
Yangın Merdiveni Satışı ve Yangın Merdiveni İmalatı Hakkında Türkiyenin En Kapsamlı Yangın Merdiveni Bilgi Platform
DEVAMI

Yangın merdiveni, yangın esanasında insanların hızlı bir şekilde ve güvenle tahliye edilebilmesi için hayati öneme sahiptir.
Yangın merdivenin sağlamlığı olası bir yangın durumunda insanların can güvenliği için, sağ salim binadan tahliye edilmeleri için çok önemlidir.
Yangın merdiveni hakkında detaylı bilgi almak ve ürün resimlerini görmek için lütfen sitemizi ziyaret ediniz.
Yangın Merdiveni Satışı ve Yangın Merdiveni İmalatı Hakkında Türkiyenin En Kapsamlı Yangın Merdiveni Bilgi Platform
DEVAMI

Yangın merdiveni, yangın esanasında insanların hızlı bir şekilde ve güvenle tahliye edilebilmesi için hayati öneme sahiptir.
Yangın merdivenin sağlamlığı olası bir yangın durumunda insanların can güvenliği için, sağ salim binadan tahliye edilmeleri için çok önemlidir.
Yangın merdiveni hakkında detaylı bilgi almak ve ürün resimlerini görmek için lütfen sitemizi ziyaret ediniz.
Yangın Merdiveni Satışı ve Yangın Merdiveni İmalatı Hakkında Türkiyenin En Kapsamlı Yangın Merdiveni Bilgi Platform
DEVAMI

Yangın merdiveni, yangın esanasında insanların hızlı bir şekilde ve güvenle tahliye edilebilmesi için hayati öneme sahiptir.
Yangın merdivenin sağlamlığı olası bir yangın durumunda insanların can güvenliği için, sağ salim binadan tahliye edilmeleri için çok önemlidir.
Yangın merdiveni hakkında detaylı bilgi almak ve ürün resimlerini görmek için lütfen sitemizi ziyaret ediniz.
Yangın Merdiveni Satışı ve Yangın Merdiveni İmalatı Hakkında Türkiyenin En Kapsamlı Yangın Merdiveni Bilgi Platform
DEVAMI

Yangın merdiveni, yangın esanasında insanların hızlı bir şekilde ve güvenle tahliye edilebilmesi için hayati öneme sahiptir.
Yangın merdivenin sağlamlığı olası bir yangın durumunda insanların can güvenliği için, sağ salim binadan tahliye edilmeleri için çok önemlidir.
Yangın merdiveni hakkında detaylı bilgi almak ve ürün resimlerini görmek için lütfen sitemizi ziyaret ediniz.
Yangın Merdiveni Satışı ve Yangın Merdiveni İmalatı Hakkında Türkiyenin En Kapsamlı Yangın Merdiveni Bilgi Platform
DEVAMI

Yangın merdiveni, yangın esanasında insanların hızlı bir şekilde ve güvenle tahliye edilebilmesi için hayati öneme sahiptir.
Yangın merdivenin sağlamlığı olası bir yangın durumunda insanların can güvenliği için, sağ salim binadan tahliye edilmeleri için çok önemlidir.
Yangın merdiveni hakkında detaylı bilgi almak ve ürün resimlerini görmek için lütfen sitemizi ziyaret ediniz.
Yangın Merdiveni Satışı ve Yangın Merdiveni İmalatı Hakkında Türkiyenin En Kapsamlı Yangın Merdiveni Bilgi Platform
DEVAMI

Yangın merdiveni, yangın esanasında insanların hızlı bir şekilde ve güvenle tahliye edilebilmesi için hayati öneme sahiptir.
Yangın merdivenin sağlamlığı olası bir yangın durumunda insanların can güvenliği için, sağ salim binadan tahliye edilmeleri için çok önemlidir.
Yangın merdiveni hakkında detaylı bilgi almak ve ürün resimlerini görmek için lütfen sitemizi ziyaret ediniz.
Yangın Merdiveni Satışı ve Yangın Merdiveni İmalatı Hakkında Türkiyenin En Kapsamlı Yangın Merdiveni Bilgi Platform
DEVAMI

Yangın merdiveni, yangın esanasında insanların hızlı bir şekilde ve güvenle tahliye edilebilmesi için hayati öneme sahiptir.
Yangın merdivenin sağlamlığı olası bir yangın durumunda insanların can güvenliği için, sağ salim binadan tahliye edilmeleri için çok önemlidir.
Yangın merdiveni hakkında detaylı bilgi almak ve ürün resimlerini görmek için lütfen sitemizi ziyaret ediniz.
Yangın Merdiveni Satışı ve Yangın Merdiveni İmalatı Hakkında Türkiyenin En Kapsamlı Yangın Merdiveni Bilgi Platform
DEVAMI

Yangın merdiveni, yangın esanasında insanların hızlı bir şekilde ve güvenle tahliye edilebilmesi için hayati öneme sahiptir.
Yangın merdivenin sağlamlığı olası bir yangın durumunda insanların can güvenliği için, sağ salim binadan tahliye edilmeleri için çok önemlidir.
Yangın merdiveni hakkında detaylı bilgi almak ve ürün resimlerini görmek için lütfen sitemizi ziyaret ediniz.
Yangın Merdiveni Satışı ve Yangın Merdiveni İmalatı Hakkında Türkiyenin En Kapsamlı Yangın Merdiveni Bilgi Platform
DEVAMI

Yangın merdiveni, yangın esanasında insanların hızlı bir şekilde ve güvenle tahliye edilebilmesi için hayati öneme sahiptir.
Yangın merdivenin sağlamlığı olası bir yangın durumunda insanların can güvenliği için, sağ salim binadan tahliye edilmeleri için çok önemlidir.
Yangın merdiveni hakkında detaylı bilgi almak ve ürün resimlerini görmek için lütfen sitemizi ziyaret ediniz.
Yangın Merdiveni Satışı ve Yangın Merdiveni İmalatı Hakkında Türkiyenin En Kapsamlı Yangın Merdiveni Bilgi Platform
DEVAMI

Yangın merdiveni, yangın esanasında insanların hızlı bir şekilde ve güvenle tahliye edilebilmesi için hayati öneme sahiptir.
Yangın merdivenin sağlamlığı olası bir yangın durumunda insanların can güvenliği için, sağ salim binadan tahliye edilmeleri için çok önemlidir.
Yangın merdiveni hakkında detaylı bilgi almak ve ürün resimlerini görmek için lütfen sitemizi ziyaret ediniz.
Yangın Merdiveni Satışı ve Yangın Merdiveni İmalatı Hakkında Türkiyenin En Kapsamlı Yangın Merdiveni Bilgi Platform
DEVAMI

Yangın merdiveni, yangın esanasında insanların hızlı bir şekilde ve güvenle tahliye edilebilmesi için hayati öneme sahiptir.
Yangın merdivenin sağlamlığı olası bir yangın durumunda insanların can güvenliği için, sağ salim binadan tahliye edilmeleri için çok önemlidir.
Yangın merdiveni hakkında detaylı bilgi almak ve ürün resimlerini görmek için lütfen sitemizi ziyaret ediniz.
Yangın Merdiveni Satışı ve Yangın Merdiveni İmalatı Hakkında Türkiyenin En Kapsamlı Yangın Merdiveni Bilgi Platform
DEVAMI

Yangın merdiveni, yangın esanasında insanların hızlı bir şekilde ve güvenle tahliye edilebilmesi için hayati öneme sahiptir.
Yangın merdivenin sağlamlığı olası bir yangın durumunda insanların can güvenliği için, sağ salim binadan tahliye edilmeleri için çok önemlidir.
Yangın merdiveni hakkında detaylı bilgi almak ve ürün resimlerini görmek için lütfen sitemizi ziyaret ediniz.
Yangın Merdiveni Satışı ve Yangın Merdiveni İmalatı Hakkında Türkiyenin En Kapsamlı Yangın Merdiveni Bilgi Platform
DEVAMI